Hechtviertel
GRUNDRISS WE 17allein neu (HH)-1
Bereits vermittelt
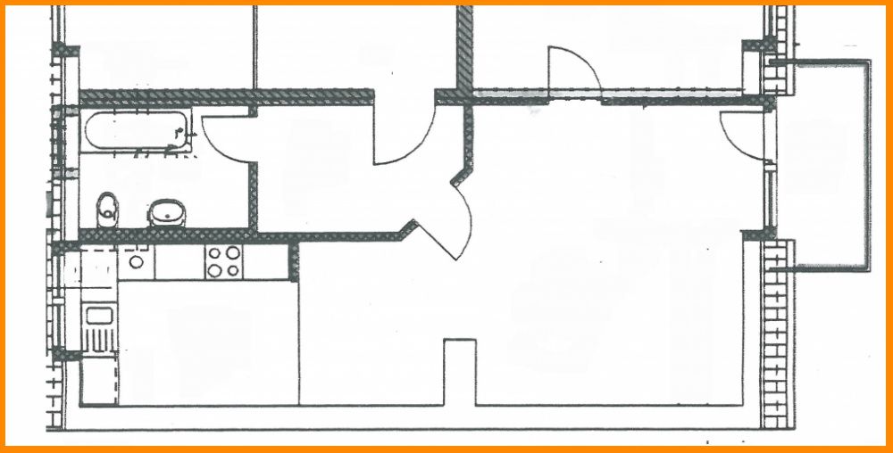
ca. 63 m²
Wohnfläche
2
Zimmer
1
Schlafzimmer

Dachgeschoss vermietet

Die sehr schöne und ruhige DG 2-Zimmerwohnung mit hellem Laminatboden befindet sich in einem Gartenhaus in Dresdener Hechtviertel. Hier können Sie die Ruhe und gleichzeitig die vielen farbigen Bilder der Dresdener Neustadt hautnah erleben.
Wir schaffen Platz für Sie…. denn neben dem hervorragenden Grundriss, steht Ihnen ein eigener Keller zur Verfügung, ein separater Fahrradkeller und Waschmaschienenplatz im Waschkeller, sowie eine Stellplatzgelegenheit für Fahrräder und Kinderwägen.

Standort:Dresden

Vereinbaren Sie jetzt Ihre kostenlose, telefonische, 15-minütige Erstberatung!