Bereits vermittelt
ca. 120 m²
Wohnfläche
7
Zimmer
ca. 820 m²
Grundstück

Einfamilienhaus verkauft

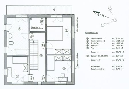
Elegante Stadtvilla mit großräumig angeordneten Zimmern. Große Fensterflächen. Geschmackvolles Design mit lichtdurchfluteten Zimmern. Verschiedene Austattungen und Ausbaustufen möglich.
Ansicht stellen ggf. verschiedene Sonderausstattungen dar.

Ohne zusätzliche Käuferprovision!

Standort:Dresden

Vereinbaren Sie jetzt Ihre kostenlose, telefonische, 15-minütige Erstberatung!