Aktuelles

  • Immobilien

    Altersvorsorge kaufen statt mieten

    In diesem 1995 erbauten Mehrfamilienhaus liegt diese schöne 2 Zimmer Erdgeschoss-Wohnung. Bestehend aus dem grossen Wohn-Essraum und anschliessender Küche ist sie geeignet für Paar oder Einzelpersonen. Schlafzimmer, Bad mit Dusche, Diele und ein Abstellraum runden das Angebot ab.

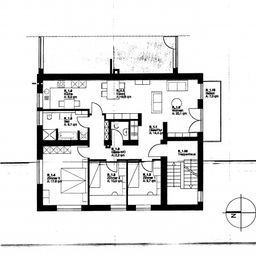
  • Immobilien

    TOP 4 Zimmer Wohnung im Centrum von Münster Hiltrup

    in einem kernsaniertem 3 Familienhaus liegt diese wunderschöne 4 Zimmerwohnung. Die Zimmer mit insgesamt 114 m² Wohnfläche wurden völlig neu gestaltet. Die räumliche Aufteilung mit der offenen Küche und anschliessender Ess-Ecke und Wohnzimmer ist schon was besonderes. Das grosse neu geflieste Bad mit Wanne, Dusche und Waschmaschinen- anschluss und 3 Schlafräumen, ein G-WC und die Diele vervollständigen das Angebot.

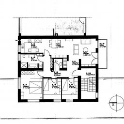
  • Immobilien

    TOP 4 Zimmer Wohnung im Centrum von Münster Hiltrup

    in einem kernsaniertem 3 Familienhaus liegt diese wunderschöne 4 Zimmerwohnung. Die Zimmer mit insgesamt 109 m² wurden völlig neu gestaltet. Die räumliche Aufteilung mit der offenen Küche und anschliessender Ess-Ecke und Wohnzimmer ist schon was besonderes. Das grosse neu geflieste Bad mit Wanne, Dusche und Waschmaschinen- anschluss und 3 Schlafräumen, ein G-WC und die Diele vervollständigen das Angebot.

  • Immobilien

    City- Nahes Wohnen

    In einem 1968 erbauten Mehrfamilienhaus liegt im II. OG die 3 Zimmer Wohnung mit insgesamt 90 m² Wohnfläche. Die Böden wurden mit Parkett neu ausgelegt das Bad ist dem Baujahr entsprechend.